Willkommen bei uns . . . 
Willkommen bei uns in Kehdingen...
Aktuelle Projekte:
" Kehdinger Heimat "
 
 " Kehdinger Heimat "
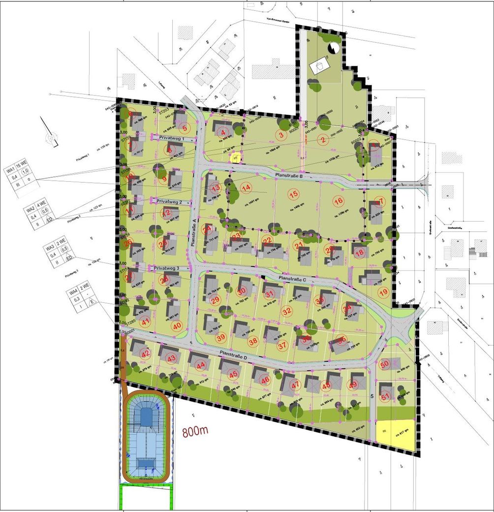
Die „AFS GmbH“ erschließt das Baugebiet "Kehdinger Heimat" in Drochtersen mit insgesamt 51 Baugrundstücken für Mehrfamilienhäuser, Ein– und Doppelhausbebauung.
Beschreibung: 
 
51 Grundstücke, davon
· 24 Grundstücke für Einfamilienhausbebauung· 11 Grundstücke für Einfamilien– oder Doppelhausbebauung,(2 WE)
· 11 Grundstücke für Einfamilien– oder Doppelhausbebauung,(4 WE)
· 5 Grundstücke für Geschosswohnungsbau
- Grundstücksgrößen 600 - 1.700m²
- Kosten der Erschließung im Kaufpreis enthalten:
· Straßen- und Wegebau
· Schmutz- Regenwasserkanalisation inkl.
  Übergabeschacht
· Vermessungskosten inkl. Grenzmarkierung· Ausgleichs- und Ersatzmaßnahmen
Vorteile: 
 
 
- CO²-Neutrale Energieversorgung
(primär Energiefaktor 0,01)
(primär Energiefaktor 0,01)
- Günstiger KFW-Kredit von 120.000€ 
 pro Wohneinheit  
 
- Tilgungszuschuß mit 24.000€ 
 pro Wohneinheit.
- gute Verkehrsanbindung
- Bushaltestellen im Ort- Gymnasium, Gesamtschule, Grundschule und Kita im Ort
- Einkaufsmöglichkeiten im Ort
- Sportvereine
- Schwimmbad
- Naherholungsgebiet Elbinsel Krautsand
- Glasfasernetz für beste Internetverbindung.
Parzellierung und aktueller Verkaufsstatus:
NEU!
Vermarktungsbeginn Bauabschnitt 4 ab 01.02.2024: Grundstücke 42 bis 45, 50 und 51
Die Anbindung:
Die große Metropole Hamburg ist gut erreichbar.
Die geplante Elbquerung entsteht zwischen Ritsch und Drochtersen.
 
Hier trifft die A 20 bei Drochtersen (Landkreis Stade) im Kreuz Kehdingen auf die zurzeit in Bau und teilweise fertiggestellte Autobahn 26, die über Stade an die A 1 und A 7 südlich von Hamburg anknüpft, und führt als sogenannte Küstenautobahn A 20 über den Wesertunnel südlich von Bremerhaven weiter in Richtung Westerstede (A 28).Die geplante Elbquerung entsteht zwischen Ritsch und Drochtersen.
Die A 20 (“Ostseeautobahn”) ist Teil einer großräumigen nördlichen Ost-West-Verbindung zwischen Polen und Westeuropa. Der Neubau ist von großer Bedeutung für den gesamten norddeutschen Raum und stellt darüber hinaus einen wichtigen Baustein für das transeuropäische Verkehrsnetz dar.
Zusätzlich gibt es eine Fährverbindung zwischen Glücksstadt und Wischhafen.
Die gute S-Bahn-Verbindung ab Stade macht das Pendeln leicht.

  
 
  
 


